OGŁOSZENIE ARCHIWALNE
Mieszkanie na sprzedaż, pokoje: 2, cena: 360 000,00 PLN, Gdańsk, kontakt: 502-320-882
ADRES NIERUCHOMOŚCI
Kraj
POLSKA
Województwo
POMORSKIE
Miejscowość
GDAŃSK
Ulica
GEN. AUGUSTA EMILA FIELDORFA
DANE SZCZEGÓŁOWE NIERUCHOMOŚCI
Cena ofertowa
360 000,00 PLN
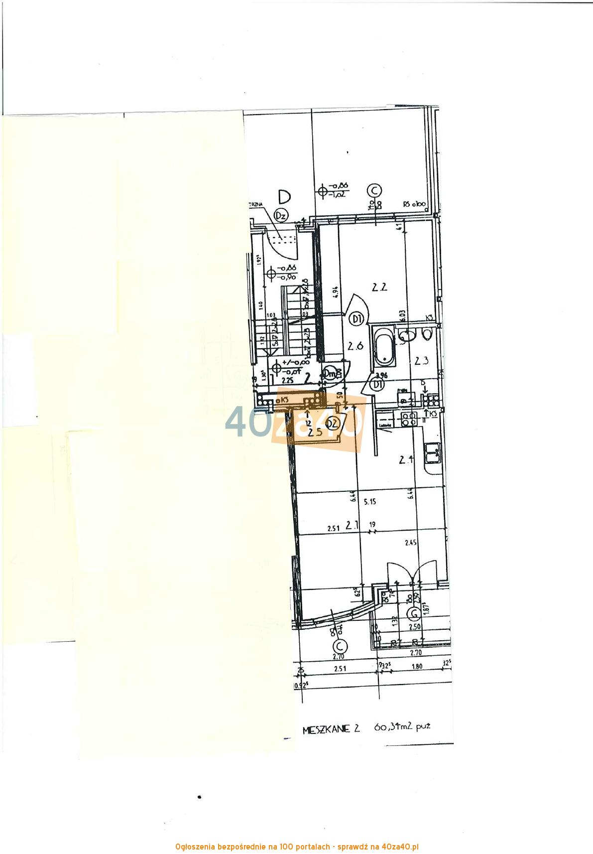
Powierzchnia
60,30 m2
Cena za m2
5 970,15 PLN
Czynsz dla spółdzieni / wspólnoty
Piętro
PARTER
Liczba pięter
2
Liczba Pokoi
2
Rok Budowy
2003
Liczba Łazienek
1
Liczba Osobnych Wc
Garaż - Iość Miejsc
Parking - Ilość Miejsc
INFORMACJE DODATKOWE Ogrzewanie GAZOWE
Okna
Dostepne media Balkon, Winda, Piwnica,
OPIS
Oferta bezpośrednia.
Telefon: 502-320-882
Mieszkanie w domku z garażem
LOKALIZACJA: mieszkanie znajduje się w budynku dwukondygnacyjnym z 2003 roku, w którym znajdują się jedynie 4 mieszkania. Kameralna ulica położona na terenie Oruni Górnej charakteryzująca się niską zabudową, dobrze skomunikowana z Centrum Gdańska (autobusy, tramwaj) oraz Obwodnicą Trójmiejską. Dzielnica posiada bardzo dobrą infrastrukturę: sklepy (Lidl, Biedronka, Rossman) przedszkole, szkoła podstawowa, placówki bankowe, nowy ośrodek zdrowia.
MIESZKANIE: komfortowe mieszkanie o powierzchni 60,3 m2 usytuowane na parterze, składające się z przestronnego pokoju z aneksem kuchennym, pokoju, przedpokoju, łazienki z wc, garderoby oraz balkonu. Położenie lokalu południowe (salon z aneksem kuchennym), północ (sypialnia). Do mieszkania przynależą DWIE piwnice o łącznej powierzchni 9 m2 oraz GARAŻ o powierzchni 16,5 m2.
ATUTY: mieszkanie zadbane, brak opłat czynszowych, ponoszone koszty są jedynie od rzeczywistego zużycia mediów (prąd, gaz, woda, wywóz odpadów), do wyłącznej dyspozycji mieszkańców domu przynależy ogrodzony ogród, w cenie mieszkania garaż oraz zabudowa kuchni wraz z sprzętem AGD (płyta elektryczno-gazowa, lodówka), bez pośredników - bez prowizji.
KONTAKT: 502-320-882
Oferta dodana z serwisu multiporta.
Serwis multiporta.pl jest jednocześnie biurem ogłoszeniowym jak i portalem nieruchomościowym. Z jednej strony dajemy możliwość zamieszczenia oferty bezpośredniej o sprzedaży lub wynajmie nieruchomości na portalach zewnętrznych, z drugiej strony prezentujemy oferty na własnych stronach Internetowych.
Wszystkie oferty nieruchomości prezentowane na naszym serwisie są ogłoszeniami bezpośrednimi dodawanymi przez właściciela nieruchomości. Ogłoszenia nieruchomości można dodawać w czterech kategoriach: sprzedaż lub wynajem mieszkania, sprzedaż lub wynajem domu, sprzedaż lub dzierżawa działki, sprzedaż lub wynajem lokalu komercyjnego.
Dodanie ogłoszenia o sprzedaży lub wynajmie nieruchomości (mieszkania, domy, działki, lokale komercyjne) do serwisu multiporta.pl jest bezpłatne. W każdej chwili użytkownik serwisu może opłacić swoją ofertę, publikując tym samym ogłoszenie bezpośrednie na wielu portalach zewnętrznych (około 100 portali nieruchomościowych).
Naszych partnerów staramy się dobierać tak, aby zapewnić jak największy zasięg naszym ogłoszeniom. Skuteczne portale ogłoszeniowe, czyli te które są często odwiedzane (na których generowany jest duży ruch) są jednocześnie portalami najdroższymi. Dbamy o to, aby cena, którą uiszcza użytkownik za publikację ogłoszenia bezpośredniego oscylowała w granicach połowy stawek portalowych. Jest to możliwe dzięki temu, że kupujemy na portalach ogłoszenia w cenach hurtowych. Uzyskanym rabatem dzielimy się z naszymi klientami. Wychodzimy z założenia, że skuteczne ogłaszanie nieruchomości to takie, które zapewni dobrą widoczność ofert na wszystkich najważniejszych portalach ogłoszeniowych.
Dodanie ogłoszenia bezpośredniego nie wiąże się z koniecznością rejestracji w naszym serwisie. Umożliwiamy jednak każdemu ogłoszeniodawcy zarządzanie treścią oferty. W każdej chwili użytkownik serwisu może dokonać zmian w swojej ofercie. Wszystkie wprowadzane zmiany trafiają na portale w czasie rzeczywistym. Jedynym ograniczeniem jest tutaj czas, który przewidują poszczególne portale na aktualizację bazy danych. Z reguły zmiany wprowadzane są w czasie jednej godziny od momentu zapisania zmian na naszym serwisie.
Formularze zgłoszeniowe skonstruowane są w taki sposób, aby zebrać najważniejsze informacje dotyczące danego rodzaju nieruchomości. Wymagamy wypełnienia tylko tych pól, które są niezbędne, aby dane ogłoszenie zostało przyjęte przez zewnętrzne portale nieruchomościowe. Do każdej oferty można dodać zdjęcia oraz film (np. opublikowany na youtube).
W prosty sposób, użytkownik może oznaczyć zdjęcie główne napisem „bezpośrednio” oraz dodać do zdjęcia głównego swój numer telefonu. Oznaczenie zdjęcia głównego powyższymi znacznikami ułatwia kontakt bezpośredni potencjalnych klientów z właścicielem nieruchomości.
Gwarantujemy publikację ogłoszenia na 100% portali, które przyjmują dany rodzaj oferty. Na życzenie klientów jesteśmy w stanie wprowadzać zmiany indywidualne do poszczególnych ofert na konkretnych portalach ogłoszeniowych – np. tam, gdzie jest to możliwe możemy dodawać tytuły uzupełniające (np. zamiast „mieszkanie na sprzedaż 45m, 295000zł”, możemy wstawić „Okazja, mieszkanie w super cenie na Powiślu”).
W sekcji płatności, każdy użytkownik może wybrać opcje dodatkowe, takie jak wyróżnienia ogłoszenia na poszczególnych portalach nieruchomościowych. W większości przypadków wyróżnienia przenoszą daną ofertę do sekcji ofert premiowanych. Ogłoszenia takie wyświetlane są przez dany portal ponad ogłoszeniami standardowymi.
Ogłoszenia bezpośrednie nieruchomości w dalszym ciągu stanowią niewielki ułamek wszystkich ogłoszeń nieruchomości publikowanych na portalach. Obecnie na rynku nieruchomości, stosunek ten wynosi 1:100 – jedno ogłoszenie na 100 dodanych do danego serwisu jest ogłoszeniem pochodzącym od właściciela. Pozostałe oferty dodawane są przez pośredników w obrocie nieruchomościami. Informacja ta jest o tyle znacząca, że tylko około 15% nabywców nieruchomości deklaruje chęć skorzystania z pomocy pośredników. Multiporta.pl pomaga Państwu dotrzeć do tych osób, niezależnie od tego na jakim portalu będą wyszukiwać interesujące ich oferty sprzedaży lub wynajmu nieruchomości.
Dodatkowo, każde ogłoszenie nieruchomości dodawane do naszego serwisu ogłoszeniowego uzyskuje indywidualny adres strony w domenie multiporta.pl. Podobnie dzieje się w domenach naszych partnerów. Dzięki takiemu rozwiązaniu już po kilku dniach Państwa oferta zostanie zaindeksowana w wyszukiwarkach – np. Google. Jeżeli potencjalny klient wpisze w Google parametry zbliżone do parametrów Państwa oferty, Google zwróci w wynikach wyszukiwania adres strony z Państwa ogłoszeniem.
Do każdego ogłoszenia wystawiany jest rachunek. Nie jesteśmy płatnikiem VAT dlatego wszystkie ceny zamieszczone w serwisie multiporta.pl są cenami ostatecznymi i nie będą powiększane o podatek VAT.
Podsumowując. Dodajesz ogłoszenie raz na naszym serwisie – a my w czasie rzeczywistym, automatycznie umieszczamy je na około 100 portalach nieruchomościowych. Do tego możesz zamówić wyróżnienia ofert znacznie taniej niż bezpośrednio na tych portalach, a cena będzie stanowiła około połowy kosztów portalowych.
do góry
Copyright © 2014-2026 by multiporta.pl
Wykonanie i utrzymanie N-SOFT